1. rumah dijual kalasan sleman
  2. DIJUAL RUMAH SIAP HUNI DI KALASAN

dijual

Rp.760,000,000

rumah

DIJUAL RUMAH SIAP HUNI DI KALASAN

kalasan, sleman

Utara ringin purwomartani

Spesifikasi

Detail informasi properti

Kamar Tidur
3
Kamar Mandi
2
Lantai
1
Luas Tanah
121
Luas Bangunan
65
Sertifikat
SHM

Deskripsi

Deskripsi mengenai properti

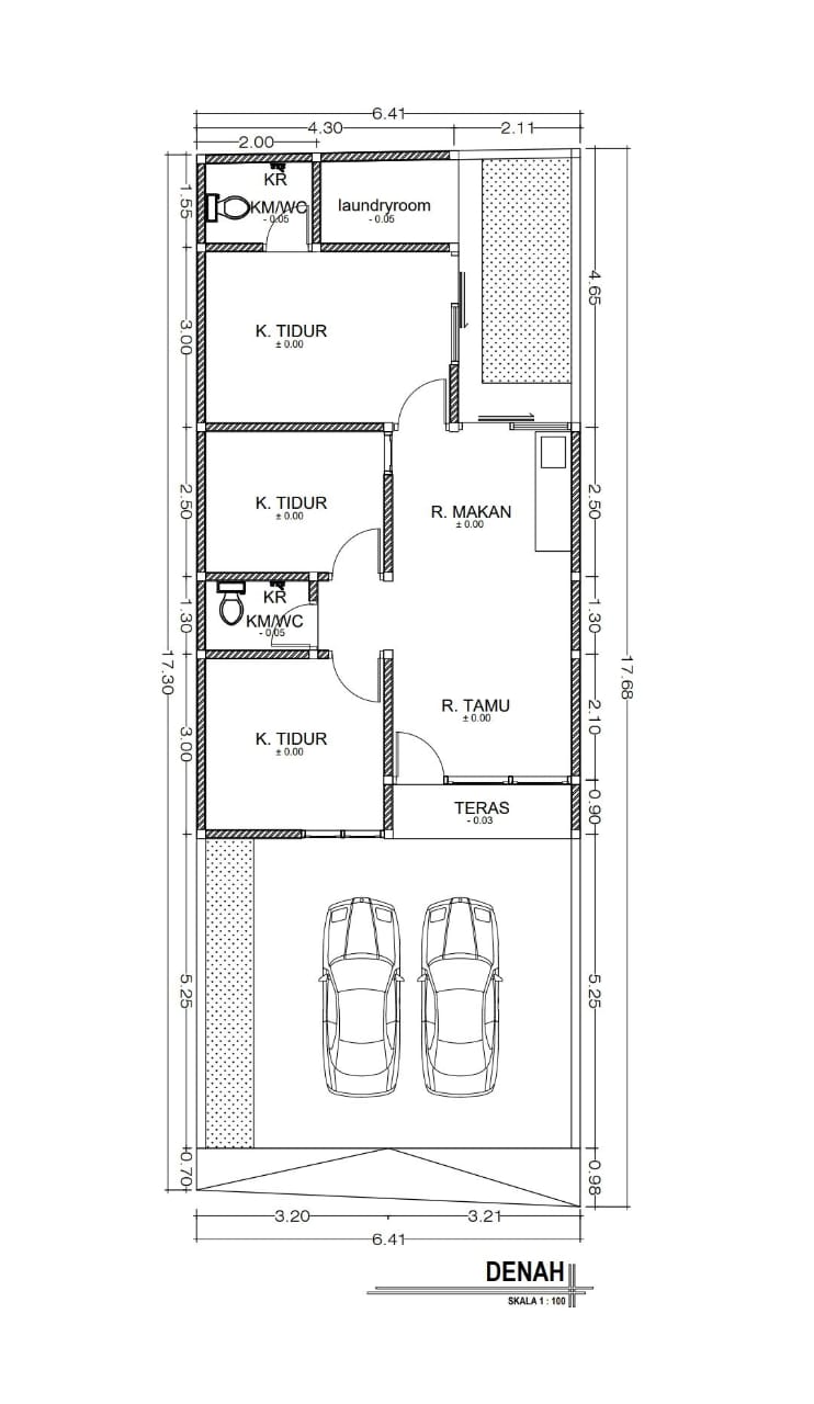
PROMO!! Rumah minimalis modern 700 jutaan di kalasan deket jl. Jogja-solo HARGA: 760 Juta LOKASI: Purwomartani, Kalasan, Sleman SPESIFIKASI : • Luas Tanah 112m2 – 121m2 • Luas Bangunan 65 m2 • 3 Kamar Tidur • 2 Kamar Mandi • Ruang Tamu • Ruang Keluarga • Ruang makan • Dapur • Laundry Room • Sumur Bor • Listrik 1.300 watt • Carport 2 Mobil • SHM IMB SKEMA PEMBAYARAN : CASH KERAS & CASH PROGRES MAGNET KAWASAN: • 9 Menit Wisata Candi Sambisari • 10 Menit Jl. Jogja-Solo • 10 Menit Kampus UNKRIM • 12 Menit Bandara Adisucipto • 12 Menit RS Islam PDHI • Dekat Berbagai Fasum, dll. Info & Survei Hubungi : wa.me/+6281917656926 (Toni SANs)

Rumah Murah Minimalis dekat SPBU Selomartani Kalasan Sleman
dijual

Rp.425,000,000

Rumah Murah Minimalis dekat SPBU Selomartani Kalasan Sleman

Bimomartani Kalasan Sleman Yogyakarta

kalasan, sleman
Rumah Mewah Modern dekat Pamella 7 Purwomartani Sleman
dijual

Rp.1,750,000,000

Rumah Mewah Modern dekat Pamella 7 Purwomartani Sleman

Purwomartani Kalasan Sleman Yogyakarta

kalasan, sleman
Rumah Murah Siap Huni dekat Pasar Kalasan Sleman
dijual

Rp.450,000,000

Rumah Murah Siap Huni dekat Pasar Kalasan Sleman

Tirtomartani Kaalasan Sleman Yogyakarta

kalasan, sleman
Rumah Murah Siap Huni FULL FURNISH dekat Pamella 7 Purwomartani
dijual

Rp.535,000,000

Rumah Murah Siap Huni FULL FURNISH dekat Pamella 7 Purwomartani

Purwomartani Kalasan Sleman Yogyakarta

kalasan, sleman
kiosrumah.com

Kiosrumah.com - Portal properti indonesia. Pasang dan cari iklan disini gratis

SITEMAP

KONTAK

Email:

cs@kiosrumah.com